
今回のプロジェクトは、ニュージーランドのマタランギ(Matarangi)海岸の西にSumich Chaplin ArchitectsのMatt Chaplinが中心となって建てられれた一軒家「Modern Home Especially Designed for Active Relaxation」をご紹介します。
「アクティブなリラクゼーション」というユニークなコンセプトを基に、広々ゆったりとした空間がデザインされています。
物件は2階建てとなっており、1階部分には開放感のあるリビング、ダイニングスペースやキッチン、ワイン貯蔵庫などを仕切りのないスペースにレイアウトされています。2つの暖炉も用意されており、自然と家族が1階部分に集まるように考えられているそうです。同時にゲストルームや洗面所なども完備しており、リビングルームからは裏庭に広がるリラクゼーションスペースへとつながっています。
2階部分は2つに分かれており、2つの寝室と洗面所が片方、そしてウォークインクローゼットを完備したマスターベッドルームがデザインされており、プライベートに配慮したラウンジスペースまで完備されています。
子供たちは夏休みに突入したようですが、こんなゆったり空間なら快適な夏休みを過ごすことができそうです。
詳細は以下から。
リビングスペースには大きな暖炉が2つ備え付けられており、自然とひとが集まります。

リビングの高い天井には天板が取り付けられており、明るい光が日中でも差し込むように工夫されています。

もうひとつのリビングスペース、窓をあけるとそのまま裏庭スペースへとつながっています。

1階中央部分にレイアウトされたウッドフロアのラウンジスペース、夜風を浴びながらみんなとの会話もはずみます。

リビングはオーシャンビューとなっており、無駄に散歩をしたくなる広大な敷地が魅力的です。

こちらがキッチンスペース、アイランド型キッチンを配備することでわいわい言いながら食事を作る姿が想像できます。

家の裏には暖炉に使う薪が保管されており、ウッドをふんだんに使った落ち着いたスペースとなっています。

「アクティブ・リラクゼーション」のコンセプトを体感することができるラウンジスペース。

2つのパーツに分かれたつくりとなっており、長い廊下が2つの建物をつなげます。

ぐるっと外観を見た様子、まわりの木に囲まれた静かな空間がそこには広がります。

印象的な廊下は中庭スペースまで続きます。部分的にライティングされており幻想的な雰囲気。

屋内外の区別をなくし、大きなガラス窓を利用することで更に開放的で広さを感じるスペースとなっています。

あたりが暗くなると家全体がライトアップされたように照明が灯ります。どんな一日をすごしましょうか。

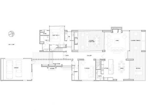
今回ご紹介した物件の見取り図、こちらが1階部分。

そして2階部分の見取り図がこちら。

[参照元 : Modern Home Espcially Designed for Active Relaxation in New Zealand]







